|
|
|
DOCK HARDWARE IN BC AND ALBERTA CANADA
 |
CLICK ON DRAWINGS TO VIEW LARGER IMAGES.
|
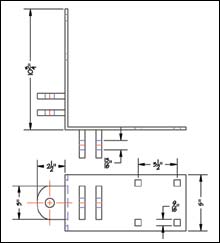
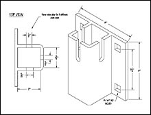
(H-IC) The inside corner, working
opposite the outside corner, sandwiches the wood,
keeping bolts from burying themselves in the wood.
This corner gusset will give the dock a lot of strength
and stability. |
(H-OCE) The outside corner end
is used at the ends of dock, ends of fingers, or corners
of swim platforms. |
(H-A) Angles are used with a Washer
Plate (H-W) to hold cross stringers
to side stringers. These two pieces of steel sandwich
the wood, creating a solid corner. |
(H-W) The washer plate is used
primarily with Angles (H-A) and Cleat
Angles (H-CA). The plate has two
square holes to keep the carriage bolts from turning
when tightening them. |
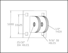
(H-B) Use the Backup Plate with
our Single "T" Males (H-SM) and Single
"T" Females (H-SF) for additional
strength. They also keep the bolts from pulling through
your wood. |
(H-SM) The Single "T" Male has
one 5/8" tab with a hole for a 3/4" Connector Pin
(B-PIN) and is used with a Single
"T" Female (H-SF) or Outside Corner
Female (H-OCF). The male and female
singles can both be used to make finger attachments
by bolting them to the side of a dock. They can also
be used to make ramps by bolting them to seawalls. |
(H-SF) The Single "T" Female has
two 1/2" tabs with holes for a 3/4" Connector Pin
(B-PIN) and is used with a Single
"T" Male (H-SM) or Outside Corner
Male (H-OCM). The male and female
singles can both be used to make finger attachments
by bolting them to the side of a dock. They can also
be used to make ramps by bolting them to seawalls. |
(H-OCM) The Outside Corner Male
has one 5/8" tab with a hole for a 3/4" Connector
Pin (B-PIN). Use with an Outside
Corner Female (H-OCF) or with a Single
"T" Female (H-SF) at the corner of
your dock to attach a finger or dock section. |
(H-OCF) The Outside Corner Female
has two 1/2" tabs with holes for a 3/4" Connector
Pin (B-PIN). Use with an Outside
Corner Male (H-OCF) or with a Single
"T" Male (H-SF) at the corner of
your dock to attach a finger or dock section. |
Outside Corner Female/Female |
(WH-OCFF) Made to add a finger on the corner, and saves using a H-SM or H-SF. |
Outside Corner Female/Male |
(WH-OCFM)
Made to add a finger on the corner, and saves using a H-SM or H-SF.
(Click photo to enlarge.) |
|
(WH-OCMM)
Made to add a finger on the corner, and saves using a H-SM or H-SF.
(Click photo to enlarge.) |
|
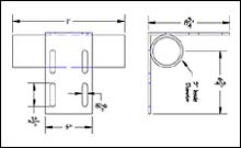
Inside Corner - 3" I.D. Pipe Holder |
(H-IC3) Use the Inside Corner -
3" I.D. Pipe Holder in place of a regular inside corner
to accommodate a 2" I.D. pipe. The 3" Pipe Holder
is welded in place. |
(P-3) Our 3" Pipe Holder bolts
to a side stringer. Use a 2" standard pipe to anchor
your dock in place. |
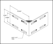
(H-CA) The cleat angle has slots
that accommodate various cleat sizes. Bolt the cleat
angle to the side stringer using a Washer Plate (H-W).
Then bolt the cleat through the deck into the cleat
angle. This will ensure that the cleat will not pull
out of the deck. |
(H-SP) Our Splice Plates were designed to join two timbers together. One is used on each side. The bolt holes are drilled so that an angle and 1/ 1/2" lumber can be added at the splice and end up at the end of the splice. Our Splice Plates are sold in pairs. |
(H-CRS) Our Chain Retainer bolts to the side of your dock and uses chain to hold the dock in place. You can use 5/16", 3/8" or 1/2"chain. Use either (2) H-W or (1) B as back up plates. 5" L x 5" H. |
|
DOCK FINGER STABILIZERS
 (Click to enlarge)
|
Outside Corner Male 45 Degree Angle (WH-OC45) |
|
 (Click photo to enlarge.)
|
Outside Corner Male Stabilizer (WH-OCMST) |
|
 (Click photo to enlarge.)
|
Finger Stabilizers (WH-135) |
|
 (Click photo to enlarge.)
|
|
|
|
 Build-A-Dock
 Dock Accessories
 Ace Floats
|